Tọa lạc tại thành phố Hồ Chí Minh náo nhiệt, Tropical Penthouse mong muốn đưa ốc đảo xanh vào trong thiết kế nhà ở, điểm xuyết vào “rừng bê tông” một không gian xanh mướt. Đây là nơi để gia chủ nghỉ ngơi, tận hưởng những phút giây bên gia đình và bạn bè, nuôi dưỡng sức khỏe và tinh thần.
Thông tin công trình:
- Diện tích: 470m2
- Năm: 2020
- Địa điểm: Tp. Hồ Chí Minh
- Kiến trúc sư chính: Arturo Moreno, Sarah Jacquemond
- Thiết kế cảnh quan: StudioDuo Architecture
- Phụ trách nhóm thiết kế: Tracy Nguyen
- Khách hàng: David & Martina Klein
- Ảnh: Đỗ Sỹ

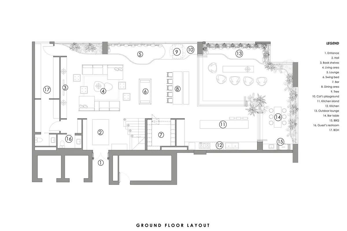
Mặt bằng tầng trệt

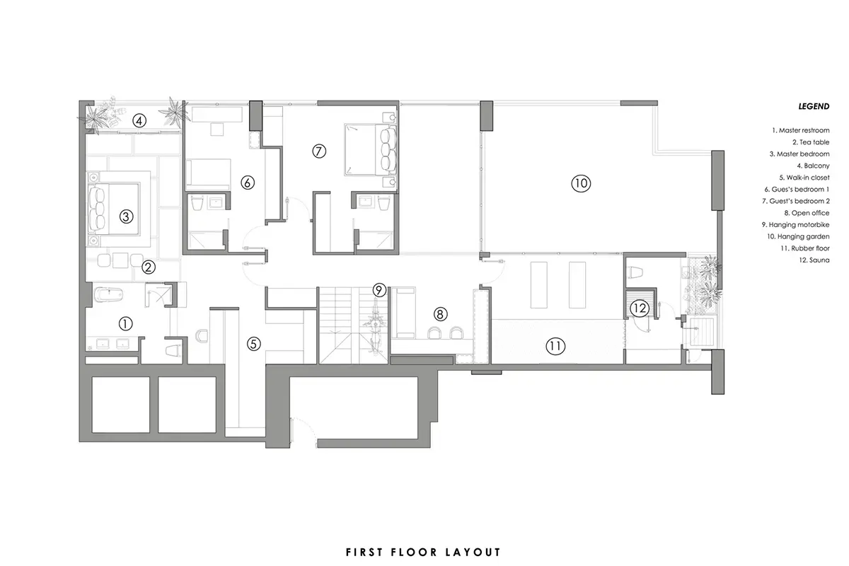
Mặt bằng tầng 1
Giữa “khu rừng bê tông” hiện hữu một khu vườn nho nhỏ, là nơi để tận hưởng cùng gia đình và bạn bè đồng thời nuôi dưỡng sức khoẻ và tâm trí. Tropical Penthouse chính là nơi mang đến không gian tĩnh tại và sảng khoái. Việc sử dụng các vật liệu ấm áp như gỗ và vữa, kết hợp với hệ thống cây xanh trồng khắp nơi sẽ tạo bầu không khí xanh nhiệt đới sống động ngay giữa lòng thành phố. Dường như không có bất cứ bức tường nào phân chia không gian chức năng, đảm bảo không gian được mở rộng tối đa, thoáng đãng. Băng ghế dài trải từ góc này sang góc khác của ngôi nhà chính là mốc phân chia chính của ngôi nhà.

Tropical Penthouse mang đậm phong cách nhiệt đới với không gian ngập tràn cây xanh.

Không có tường ngăn cách trong ngôi nhà, không gian được mở rộng tối đa

Một góc bình yên với băng ghế dài và xích đu ngập nắng lúc sáng sớm
Phòng khách nổi bật với một chiếc sofa mô-đun được thiết kế riêng, một chiếc bàn gỗ mộc mạc. Không gian có thể nhìn ra mọi hướng nhờ những ô cửa kính to trong suốt. Nơi đây có thể bố trí máy chiếu để gia chủ có những buổi xem phim tại gia thoải mái hoặc là nơi tụ họp, trò chuyện.

Không gian phòng khách tone ấm áp ngập tràn ánh sáng

Phòng bếp với view nhìn đắt giá ra mảng xanh phía ngoài
Ban công bên ngoài cũng bố trí một băng ghế dài, bao quanh là cây xanh, phù hợp để thưởng thức một tách cà phê buổi sáng ngắm thành phố hoặc thảnh thơi đọc sách.

Một góc không gian xanh để gia chủ có thể tận hưởng bình minh và hoàng hôn trong ngày
Sàn được lát hoàn toàn bằng gỗ tếch tự nhiên, các đồ nội thất như tủ bếp, bàn đảo cũng được bao bọc bằng một lớp gỗ tếch nâu trầm với những chiếc ghế xích đu kéo từ trần nhà.

Sàn được lát hoàn toàn bằng gỗ tếch cứng đồng bộ
Một trong những điểm nhấn khác của căn penthouse này là những bậc cầu thang từ các thanh gỗ dài được sắp xếp có chủ đích để đi lên tầng hai.

Cầu thang bằng gỗ đi lên tầng hai
Tầng trên hướng nội hơn tầng trệt một chút và được bố trí đầy đủ tiện ích từ spa, gym, phòng làm việc và 4 phòng ngủ. Phong cách trang trí thể hiện cá tính của gia chủ từ những bức tranh tường độc đáo cho đến các đèn đan từ mây được thiết kế riêng, và một chiếc Honda 67 biểu tượng của Việt Nam những năm 60 của thế kỷ trước.

Chiếc xe máy Honda mang tính biểu tượng của Việt Nam một thời được gia chủ sưu tầm

Phòng ngủ đơn giản với tông màu nâu trầm

Nhà tắm được thiết kế mở và phân chia khu vực khô – ướt rõ ràng

Phòng tập gym rèn luyện sức khỏe của gia chủ
Sân thượng ngoài trời được phủ đầy cây xanh với các chậu cây xanh treo thả từ trên xuống có thể trồng mọi loại cây thích ứng khí hậu nhiệt đới.
