Chủ nhà là 1 cặp vợ chồng hiện đang sống và làm việc trong môi trường Nhật Bản, họ dành tình yêu lớn cho văn hoá cũng như kiến trúc Nhật. Tuy nhiên, mục đích của căn hộ này chỉ dành cho 1 người Nhật bản xứ sinh sống và làm việc tại Việt Nam.
Thông tin công trình:
- Thiết kế: Căn hộ phong cách Zen Nhật Bản
- Địa điểm: tòa S403 Vinhomes Smart City – phường Tây Mỗ, quận Nam Từ Liêm, Hà Nội
- Diện tích 64 m2
- Năm hoàn thành: 2022

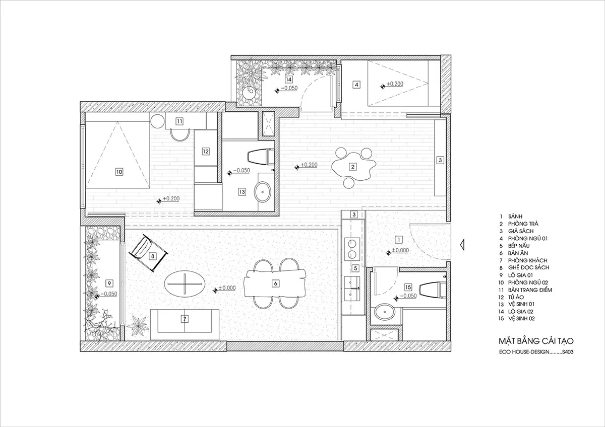
Mặt bằng cải tạo và bố trí nội thất của căn hộ
Kiến trúc Nhật vốn nổi tiếng trên toàn thế giới về sự tối giản nhưng vẫn toát lên vẻ đẹp tinh tế, hấp dẫn và lôi cuốn. Nếu ai đã trót mang tình yêu với xứ sở hoa anh đào thì chắc chắn khó lòng có thể chối từ những ngôi nhà mang phong cách Zen – phong cách mang đậm chất Nhật. Trong từ điển, Zen có ý nghĩa liên quan tới Thiền, hiểu trong kiến trúc đó là phản ánh sự cân bằng, hài hòa giữa các yếu tố.
Khi cuộc sống hiện đại đang dần cuốn mọi người theo biết bao bộn bề công việc và những mối quan hệ phức tạp thì người ta lại càng cần có những khoảng nghỉ ngơi chất lượng, cần một nơi để nạp lại năng lượng sau một ngày dài vất vả. Khoảnh khắc được trở về nhà vô cùng đáng quý, bởi nhà là nơi giúp cho gia chủ lấy lại được sự cân bằng, giúp họ cảm thấy thanh tịnh trong tâm hồn, tĩnh tâm sống một cuộc sống an yên.
Mặc dù diện tích căn hộ tương đối nhỏ nhưng KTS đã tinh tế khi sáng tạo một không gian mở vừa thoáng đãng, dễ chịu lại vừa đầm ấm, yên bình.

Ngôi nhà được thiết kế theo phong cách Zen hiện đại đề cao sự tối giản

Bếp ăn được thiết kế mở, liên thông với phòng khách giúp không gian trở nên rộng rãi
Khi bước vào, ta sẽ được trải qua lần lượt từng mảng không gian khác nhau tạo cảm giác kết nối xuyên suốt. Không khí và năng lượng chảy từ phòng này sang phòng khác một cách thư giãn và thoải mái.
Tại không gian phòng trà, một chiếc bàn đá tự nhiên mang dấu ấn thiền tịnh chính là điểm nhấn. Tại đây, gia chủ có thể ngồi thưởng trà, đọc sách, thư giãn cùng người thân, bạn bè.

Chiếc bàn đá tự nhiên mang dấu ấn thiền tịnh

Một góc thư thái thưởng trà, đọc sách cùng bạn bè, người thân
Việc lựa chọn sử dụng gam màu tự nhiên hài hòa, không quá nổi bật nhưng vẫn toát lên vẻ đẹp tinh tế, sang trọng.

Phòng khách với hệ cửa sổ lớn kết hợp trần cao giúp tối đa hóa nguồn sáng tự nhiên

Sàn gỗ là yếu tố đặc trưng trong phong cách thiết kế Nhật Bản
Nhận thức sâu sắc được hiệu ứng kỳ diệu từ việc vận dụng ánh sáng, kiến trúc sư đã kỹ lưỡng sắp đặt ánh sáng tự nhiên kết hợp cùng với hiệu ứng đèn để tạo nên vẻ đẹp huyền ảo.
Ánh sáng được chia làm 2 nguồn chính: ánh sáng tự nhiên và ánh sáng đèn.
Ban ngày, ánh sáng tự nhiên được đảm bảo luôn tràn ngập. Hàng trúc chỗ ban công có nhiều tác dụng, một trong những tác dụng chính của nó là bộ lọc ánh sáng. Khi ánh nắng chiếu vào sẽ tạo độ xuyên sáng vừa tăng tính thẩm mỹ cho thị giác vừa giảm bớt độ chói chang của ánh nắng.
Ánh sáng đèn mang đến cảm giác thư giãn. Toàn bộ đèn sử dụng cho ngôi nhà đều là loại đèn cao cấp, các chỉ số ánh sáng đều được tính toán kỹ lưỡng và theo tiêu chuẩn. Việc bố trí, đặt để đèn ở từng vị trí đều được tính toán và có ý đồ tạo điểm nhấn phù hợp.


Việc kết hợp hai nguồn sáng giúp căn hộ thêm phần tinh tế, ấn tượng
Cửa trượt Shoji là nét đặc trưng trong kiến trúc nội thất Nhật. Cửa được sử dụng vừa giúp tiết kiệm không gian phòng ngủ vừa tạo không gian đóng – mở theo ý muốn. Kết cấu cửa được làm bằng khung gỗ tự nhiên và dán giấy Shoji truyền thống có các sợi thô tạo điểm nhấn thị giác, mang đậm giá trị thẩm mỹ của xứ sở hoa anh đào.


Cửa trượt Shoji là nét đặc trưng trong kiến trúc Nhật Bản
Nội thất căn hộ được ưu tiên sử dụng những nguyên liệu có sẵn trong tự nhiên. Mặt sàn nâng sử dụng hoàn toàn chất liệu gỗ tự nhiên không chỉ mang đến cho không gian một cái nhìn mộc mạc, giản dị mà còn thể hiện quan điểm sống hòa mình với thiên nhiên. Gỗ sồi trắng là loại gỗ được sử dụng chính, gỗ được lau dầu thay vì phun sơn để giữ được vẻ đẹp tự nhiên của bề mặt gỗ và an toàn cho sức khỏe người sử dụng.

Mặt sàn sử dụng hoàn toàn bằng gỗ tự nhiên mang đến cảm giác mộc mạc, giản dị

Một góc thưởng trà tinh tế đậm chất Nhật Bản
Tuy là một căn hộ chung cư nhưng với sự kết hợp giữa màu xanh của những khóm trúc và sỏi cuội đã giúp cho gia chủ như đang được sống giữa thiên nhiên. Ánh nắng ban mai nhẹ nhàng mỗi buổi sớm hay bóng chiều tà xuyên qua từng kẽ tán trúc đều dễ làm con người xao xuyến, dẫn lối cho cảm xúc thăng hoa.


Những khóm trúc và sỏi cuội đã giúp cho gia chủ như đang được sống giữa thiên nhiên
Căn hộ phong cách Zen Nhật Bản là một mẫu căn hộ đẹp, đơn giản và tinh tế. Phong cách Zen Nhật Bản là sự lựa chọn phù hợp nhất dành cho căn hộ, vừa có thể tối ưu diện tích sinh hoạt, vừa tạo được cá tính riêng cho gia chủ.

































